
聯系人:肖經理
電話:0755-23197339
傳真:0755-29859300
手機:13828771664
郵箱:aotuoshi@atus.email
地址:深圳市光明區公明街道上村社區蓮塘工業城B區第19棟101、第20棟
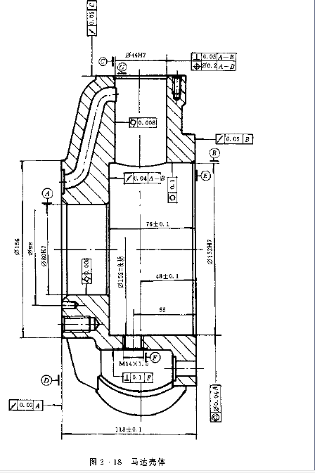
圖2-18為額定工作壓力20MPa的派克液壓馬達的殼體,是形狀較為復雜的薄壁鑄件。五個等分的活塞缸孔與安裝偏心軸的軸承孔相互垂直。其主要表面的尺寸精度,尤其是幾何形狀和相互位置精度要求如圖2-18中所示。該鑄件用QT600一3材料。鑄件加工前需人工時效,粗加工后應安排正火達硬度HB240-270。

殼體的加工工藝順序一般為:
(1)在平臺上劃線,定出適當的車加工余量。
(2)車156處至劃線,以此作粗基準。
(3)掉頭,夾持156處,車制156的大面孔和80的軸承孔,兩孔須保證同軸度,要求在機床上做到“一刀落”。
(4)掉面,將軸承孔80處倒角4.2×45°,準備鍵加工基準。
(5)以大面孔端面和152H7處為主要定位基準,將殼體裝夾于圖2-19所示的三頭組合鑊床工作臺上。上面用錐形棒自動定心在80H7的倒角處,進行缸孔端面镋、銑加工和缸孔的粗精精镋。

圖2-19所示的三頭組合銼床,它是按五等分(72°夾角)圓周布置的口動力頭A鑊平面,B,C動力頭膛孔。三個動力頭通過滑鞍均固定在同一扇形床面5上。在床面的中心,設置有五等分回轉工作臺1.撞平面動力頭用手輪控制進刀退刀,鍵孔動力頭采用液壓進給,由電、液控制實現半自動工作循環。回轉工作臺每次轉位,均需定位和夾緊鎖定,工件安裝在其上,依次完成端面和孔的粗、精加工。缸孔端面的俊削與普通鎖床上的平旋盤相似。產品批量不大時,缸孔及其端面的鎖削,可在普通臥式萬能鑊床上進行。
(6)若大批量生產時,可在圖2-19專用機床上再安排兩臺動力頭,分別完成五個缸孔端面的鉆底孔和攻絲的任務。無條件卸下工件后,手工完成。
(7)鉆大面處的安裝孔,攻絲5×M10.
(8)鉆定位銷孔6H8。
(9)鉆安裝配流體面處的安裝孔及攻絲。
(10)對缸孔5×46H7進行琦磨或滾壓,達到表面粗糙度要求。
(11)去毛刺,徹底清除殼體內壁處切屑等污染物。
(12)檢驗、入庫。